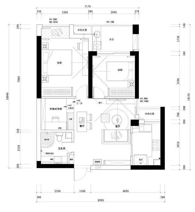
这是一套清爽舒适的现代风小户型装修案例,房屋使用面积为70㎡,除了两个卧室,设计师还重新划分了功能区,根据屋主需求设计了开放式书房。
收纳柜
因为没有独立的玄关,所以设计师在沙发背后的墙上设置一整面的中空收纳柜,用于日常收纳。
从这个角度看,左前方还有一个小鞋柜,专门用于收纳鞋子。
客厅
客厅通过吊灯、射灯的融合设计调节光源,整体运用浅色系,更显温馨舒适。
用餐区+开放式书房
用餐区采用卡座设计,既可以作为坐又能收纳。同时,卡座也充当着用餐区与开放式书房的隔断。书房不大,做成了榻榻米风,除了日常阅读、办公、小憩,也方便解决客人留宿的问题。
厨房
厨房与客厅之前采用黑框玻璃门进行隔断,不仅能够保证两个空间的通透感,也能避免了油烟烦恼。厨房内部以白色为主,明亮舒适。
主卧
主卧床头采用筒灯设计,保证明亮的同时,也有不错的装饰效果。
次卧
儿童房采用浪黄色床品营造活跃的氛围,阳台吊椅是孩子最喜欢窝着的地方。
儿童房的阳台很大,所以一侧被打造为生活阳台,方便日常洗衣、晾晒,一侧则放置吊椅用作休闲区。
卫生间
卫生间圆形玻璃门隔断+防水条的设计保证了沐浴时水流不会溅出,让洗漱区时刻保持干爽舒适。
编辑丨陈秋实
编辑
